Меню Поиск Разместить Избранное Кабинет

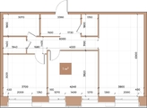
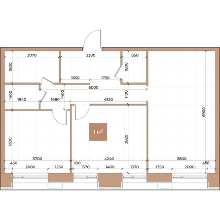
Продается 2-комн. квартира 77.5 м²

Объявление 3957228, обнов. 11.01.26
109
16 275 000 ₽ 210 000 ₽/м²
Следить за ценой

Подписка на изменение цены

Мы сообщим вам, если цена объекта изменится
или на почту
Нажимая кнопку «Подписаться» вы соглашаетесь с политикой конфиденциальности
Купить в ипотеку:
АКЦИЯ! Ипотека 2,2% на срок строительства
В ЖК «Небо над Енисеем» от ГК «СтройИнновация
до 31.01.2026 Подробнее
АКЦИЯ! Семейная комбо-ипотека 7,17%
В ЖК «Небо над Енисеем» от ГК «СтройИнновация»
до 31.01.2026 Подробнее
Адрес
Красноярск, Советский р-н, Партизана Железняка,
Партизана Железняка стр., кв. 758
Новостройка
Станции метро
Деловой центр (с дек.2028) 18 мин
Авиаторов (с дек.2028) 19 мин
Срок сдачи
4 кв 2030 — по проекту
Состояние
Устройство фундамента
Застройщик
ГК СтройИнновация
Общая площадь
77.5 м²
Этаж / всего
4 / 23
Тип дома
Монолит-кирпич
Тип и серия дома
Новой планировки
Ремонт/отделка
Без отделки

Жилой комплекс «Небо над Енисеем» — эксклюзивный проект, в котором продумана каждая деталь.

Он демонстрирует, каким высоким требованиям должен соответствовать жилой комплекс бизнес-класса.

«Небо над Енисеем» строится в Красноярске на улице Партизана Железняка, на берегу величественного Енисея.

Транспортная инфраструктура позволяет быстро добраться как до делового, так и до исторического центра города.
А по Октябрьскому мосту дорога до правого берега Енисея занимает считанные минуты.

Удачная локация подарит жителям комплекса вид на остров Татышев. Любоваться им можно будет не только из квартир, но и со смотровых площадок, расположенных во дворе комплекса.

"СЗ "КАПИТАЛСТРОЙ" Номер объявления SD24-3957228.

ГК СтройИнновация
По вопросам покупки обращаться:
Позвонить
Скажите застройщику, что нашли это объявление на СИБДОМЕ
Написать

Похожие объявления

Не можете найти нужный вариант?

Оставьте заявку на подбор объекта и мы отправим ее трем проверенным нами агентствам недвижимости. Они возьмут все вопросы поиска на себя.
Нажимая кнопку «Отправить заявку» вы соглашаетесь с политикой конфиденциальности.