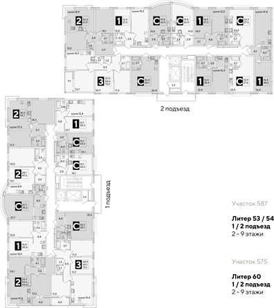
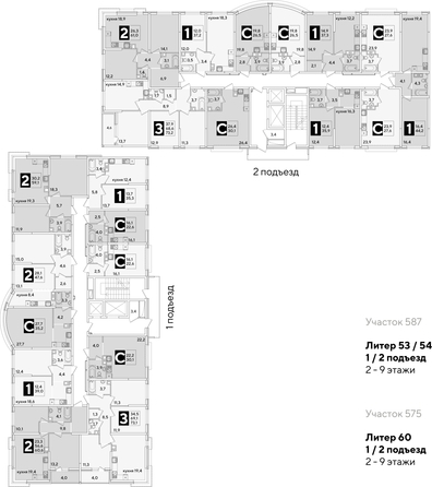
«САМОЛЁТ» — концептуальный жилой микрорайон, который расположен на северо-западе Краснодара, в районе Западного Обхода. Квартал спроектирован как «город в городе», поэтому здесь будет всё для комфортной жизни: современные дома с разными планировками, дороги, школы и детские сады, поликлиника, торговые центры, парки и аллеи. Микрорайон находится далеко от промышленных предприятий, сочетает удобство городской жизни и экологически благоприятную среду.
Инфраструктура нового микрорайона:
• Видовые квартиры с панорамным остеклением
• Безбарьерная среда
• Просторные стильные лобби
• Сквозные подъезды
• Квартиры с террасами
• Улучшенная отделка от застройщика
• Подземный паркинг и кладовые
• Видеонаблюдение и круглосуточный пост охраны
• 9 детских садов
• 4 школы в шаговой доступности
• Кольцевая велодорожка
• Аллея спорта
• Собственный пешеходный бульвар 1,6 км
• Дубовая аллея
• 11 павильонов фудкорта
• Светомузыкальный пешеходный фонтан протяжённостью 55 м
• Торговые галереи
• Храм сорока Севастийских мучеников
• Скейт-парк
• Детская акваплощадка
• Детский городок
• Крытая зона для бокса и единоборств
• Площадки для выгула собак
• 9 остановок городского транспорта
• Дороги-дублёры
Приобрести квартиру можно одним из способов:
-субсидированная семейная ипотека 4,5 % на весь срок
-рассрочка до конца строительства
-оплата наличными
-дистанционная покупка
Позвоните сейчас и забронируйте квартиру со скидкой! Номер объявления SD24-388689.
